Объявления: строительные товары и услуги, Украина
Воронка дренажна покрівельна діаметром 110 мм, довжина 300мм, з модифікованого ПВХ, використовується в дренажних покрівельних системах промислових і цивільних будинків, в яких в якості гідроізоляційного матеріалу застосовується ПВХ мембрана.
Шукаєте якісний і надійний матеріал для гідроізоляції? Ми пропонуємо ПВХ мембрану Sikaplan 18G! Основні характеристики: - Матеріал: Полівінілхлорид (ПВХ) - Товщина: 1, 8 мм - Ширина рулону: 2, 0 м - Довжина рулону: 20 м - Колір: Сірий Переваги: - Висока міцність: Забезпечує довговічність і стійкість до механічних пошкоджень.
Пароізоляційна плівка призначена для використання в конструкціях плоских дахів з метою запобігання проникненню вологи на поверхні конструкцій та покращенню повітронепроникності будівель.
Армована ТПО покрівельна мембрана Sikaplan® TM 15 це армована поліестеровою сіткою, багатошарова синтетична покрівельна мембрана на основі поліолефіну (ТПО) з вмістом стабілізаторів УФ випромінювання та вогнетривких добавок згідно з EN 13956.
Sikaplan® -SGK 1.5 – Кеширована ПВХ-мембрана для покрівель із суцільною приклейкою, товщиною 1, 5 мм. Це багатошарова синтетична покрівельна мембрана на основі високоякісного полівінілхлориду (ПВХ), армована склотканиною, з підкладкою з поліестерового волокна по EN 13956.
Гідроізоляційна мембрана для відкритих дахів з підвищеною вогнестійкістю для укладання в холодних кліматичних умовах: покрівельних систем з механічним кріпленням.
Доска из массива древесины становится всё более популярнее в нашей стране. Отличные качественные характеристики штучного паркета и массивной доски снискали ему заслуженную популярность.
Керамическая черепица в широком ассортименте акционные цены, расчет, наличие на складе, доставка монтаж. Рынок Украины переполнен различными производителями керамической черепицы, и поэтому следует выделить продукцию польского концерна Roben, производство которого действует уже на протяжении 150 лет, и качество продукции которого подтверждают многочисленный европейские сертификаты.
Підготовка під шпалери або фарбування. Малярні штукатурні роботи. Поклейка шпалер, фарбування, укоси та ін. Досвідчена маляр-штукатур. Усі райони. 0974208385.
Оклейка обоями любой сложности. Отделочно-малярные работы в квартире, комнате, кухне, коридоре. Штукатурка и шпаклевка стен и потолка. Плиточные работы. Стяжка пола.
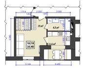
Маєте бажання жити в сучасному та затишному районі передмістя? Пропонуємо якісні квартири безпосередньо від забудовника у житловому комплексі Ювілейний. Це можливість обрати житло, яке повністю відповідає вашим очікуванням, а також вигідно інвестувати у власне майбутнє.
Предлагаем оконно - дверные петли S94 для алюминиевого профиля. Петля оконно-дверная быстрого монтажа - "пазовая". Изготовлена из алюминиевого профиля, предназначена для установки на алюминиевые двери и окна.
Изготовлена с мраморной-гранитной крошки с добавлением клея. (100% натуральная!) Свойства: - Натуральные цвета (без красителей). Экологически чистая; - Благодаря неоднородности смеси, покрытая поверхность «дышит» ; - Штукатурка легко обрабатывается, эластичная; - Стойкая к действиям атмосферных условий и механических повреждений; - Моется, не притягивает грязь; - Используется в середине и с наружи зданий, как декоративное и защитное покрытие; - Богатый цветовая гамма цветов.
Утепление фасадов зданий минеральной (базальтовой) ватой. Декоративные штукатурки (барашек, короед, мозаика). Покраска. Очистка, помывка поверхностей фасадов. Выполняем разнообразные штукатурные, шпаклевочные, малярные работы.
Кровельные Работы Днепр любой сложности Предоставляем услуги по организации кровли крыш всех видов помещений: дома, гаражи, склады, цеха, балконы, козырьки, гидроизоляция поверхностей и др.
ServiceDoc — міжнародний сервіс документальної та юридичної підтримки. Головний фокус — офіційне апостилювання документів за стандартами Гаазької конвенції Hague Apostille Convention для використання за кордоном.
Профессиональный ремонт балконов и лоджий под ключ. Среди услуг есть остекление, утепление, монтаж подоконников, откосов, герметизация и отделка стен. Специалисты подберут оптимальные решения и материалы под каждый случай, учитывая пожелания, бюджет, стиль и особенности балкона.
Требуются швеи в трикотажный цех, район коммунального рынка. Условия работы: • Светлое, тёплое и просторное помещение; • Современное швейное оборудование; • Стабильные объёмы работы круглый год.
Бурение скважин Новая Водолага, Валки, Красноград, Харьков и обл. Опытные мастера. Хорошо знаем местность. За коллективные заявки делаем скидки. Работаем в выходные дни и праздники.
Бурение скважин в Донецкой, Днепропетровской, Харьковской областях. Диаметр 125 мм. Подбор и установка насосного оборудования. Консультации в плане глубины залегания водоносных горизонтов.
























